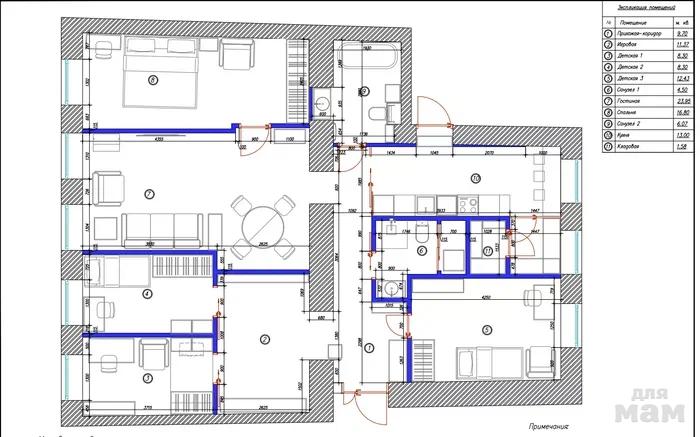
Перед вами квартира площадью 116 м2.Дизайн-проект предоставлен от заказчика.

Квартира находится в старом фонде в Санкт-Петербурге.
В квартире будет жить семья с 4-мя детьми.
Гостиная
Коридор
Для деток в квартире сделана такая игровая.
Комната девочки 12.43 м2
Небольшие комнаты мальчиков всего по 8,3 м2
Спальня родителей.
Основной санузел.
Гостевой санузел.Как думаете сколько стоил ремонт квартиры?
Комментарии 2